Oferty
Usługi
O nas
Referencje
Kontakt
PL
Filtry
Nieruchomość
Transakcja
Szukaj
domy
/
sprzedaz
/
DS 226
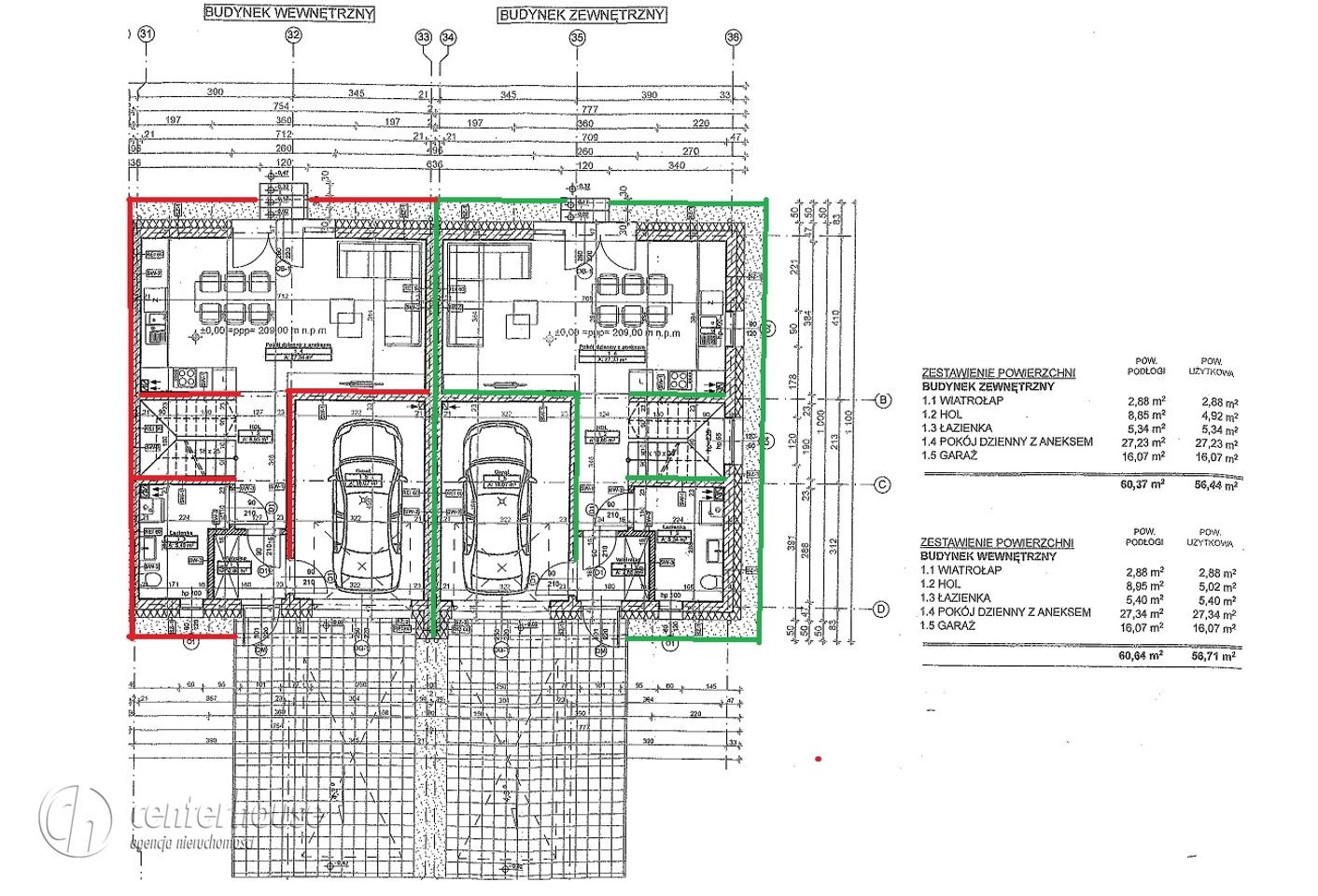
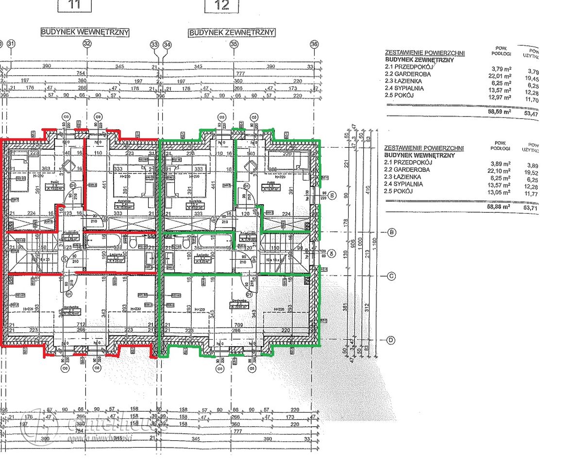
OSTATNIE SEGMENTY - SZEREGÓWKI RZESZÓW BUDZIWÓJ